MURI NEGOZIO sul lungomare di Viserba

  • €. 495.000
In evidenza Vendita
170, Viale Paolo Toscanelli, Rivabella, Viserba, Rimini, Emilia-Romagna, 47922, Italia
In evidenza Vendita
170, Viale Paolo Toscanelli, Rivabella, Viserba, Rimini, Emilia-Romagna, 47922, Italia
  • €. 495.000

Panoramica

ID Immobile: V000810
  • Negozio
  • Tipologia
  • 206

Descrizione

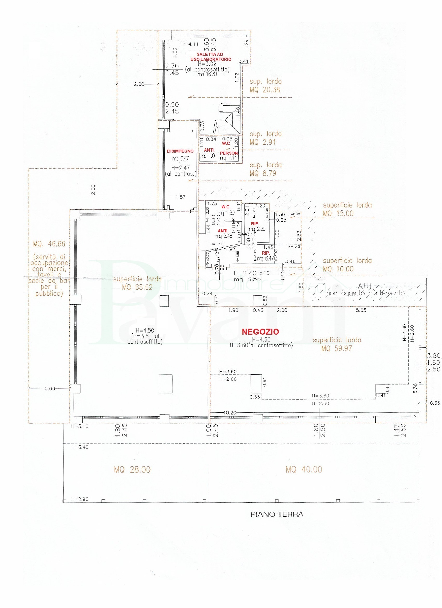
Sul lungo mare di Viserba, Via Toscanelli angolo Via Palotta, fronte mare su strada a doppio senzo di marcia, in posizione centrale con tutti i servizi a portata di mano, vendesi Muri Negozio di ampia metratura, mq. 186 circa, con 7 vetrine che gli conferiscono un ottima visibilità, composto da un ampio locale ad uso commerciale/ufficio + servizi, retro, mq. 60 di soppalco ad uso rip. , e corte esterna di mq. 47.
Locale completamente ristrutturato nel 2001 e dotato di canne fumarie in due postazioni di cottura con macchina UTA (unità trattamento aria).
Libero.

Planimetrie

image

Descrizione:

  • Indirizzo 170, Viale Paolo Toscanelli, Rivabella, Viserba, Rimini, Emilia-Romagna, 47922, Italia
  • Città Rimini
  • Stato/regione Rimini
  • Codice Postale 47922
  • Nazione Italia

Dettagli

Aggiornato su Febbraio 13, 2026 a 5:46 pm
  • ID Immobile: V000810
  • Prezzo: €. 495.000
  • Dimensioni proprietà: 206 m²
  • Tipologia: Negozio
  • Stato Immobile: Vendita

Calcolo mutuo

Mensile
  • Capitale e interessi
  • Tassa sulla proprietà
  • Assicurazioni sulla casa
  • PMI
%

Informazioni di Contatto

Visualizza annunci
info@immobiliarepavani.com
  • info@immobiliarepavani.com

Richiedi informazioni su questa proprietà

Annunci Simili

Compare listings

Confrontare
info@immobiliarepavani.com
  • info@immobiliarepavani.com