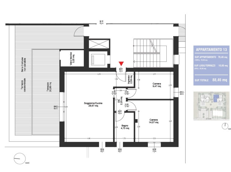
Residenza VIA TURCHETTA, appartamento A-13,
in elegante complesso residenziale composto da 2 palazzine e 3 villette a schiera, circondate da area esterne in parte condominiale in parte dedicato ad un comodo parcheggio ad uso comune si propone in vendita un Attico al 3° piano composto da comodo soggiorno angolo cottura, due camera, un bagno e terrazzo.
Attico 3° P mq 78,46 – Terrazzo mq 20.
Il complesso residenziale verrà edificato nel tratto di strada a senso unico con accesso da via San Martino in Riparotta.
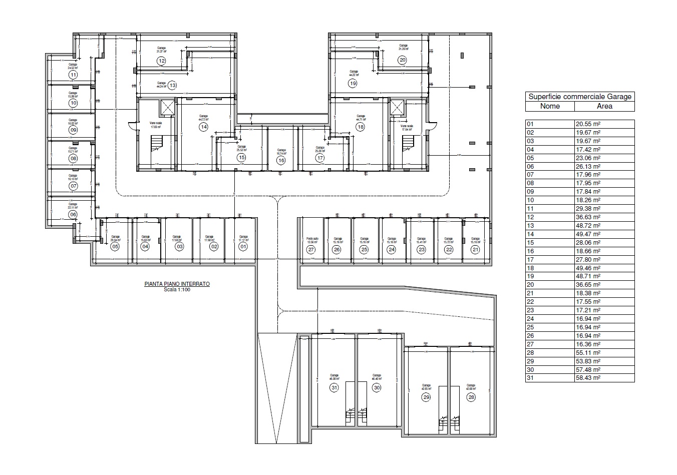
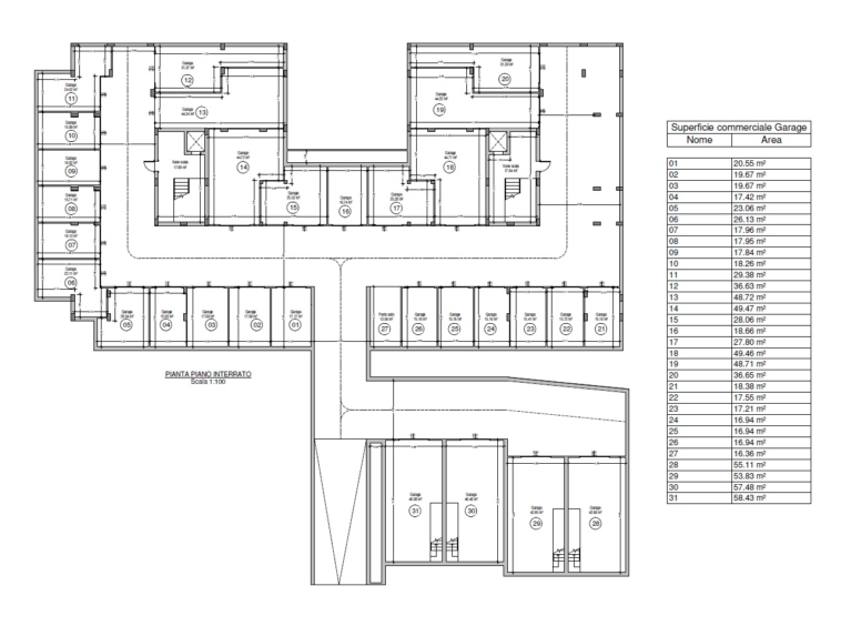
Le palazzine saranno distribuite su 3 piani fuori terra con piano interrato dedicato a spaziosi Garage acquistabili a parte a partire da euro 25 mila.
Ogni palazzina avrà in dotazione uno spazio comune per il ricovero di biciclette.
Il piano terra è dedicato ad appartamenti con due o tre camere e ampi giardini, mentre ai piani superiori verranno edificati appartamenti di diversa metratura con balconi in parte loggiati.
Al piano terzo/attico verranno costruite solo due unità abitative con terrazzi panoramici.
Le caratteristiche costruttive sono di ultima generazione e consentono ai futuri acquirenti di poter personalizzare le varie unità immobiliari sia nella distribuzione degli ambienti, sia nelle finiture interne per rispondere ad ogni esigenza di gusto personale.
Comodità sicurezza e convenienza sono le parole chiave di un progetto studiato su misura per rispondere alle esigenze abitative contemporanee.
Caratteristiche principali dei fabbricati:
# edificio “NO GAS” con vettore energetico esclusivamente elettrico;
# riscaldamento a pavimento; # pompa di calore; # cappotto termico;
# predisposizione aria condizionata; # tapparelle elettriche;
In Esclusiva con IMMOBILI SICURI.